Sale Hotels and pensions, Hotels and pensions, Šaľa, Slovakia
Country.: Slovakia
City.: Šaľa
Location.: Šaľa
5791x Listing appeared in search results / 278x Listing viewed detailed / 148x The offer was shown this month
Your rating of the listing
Listing summary
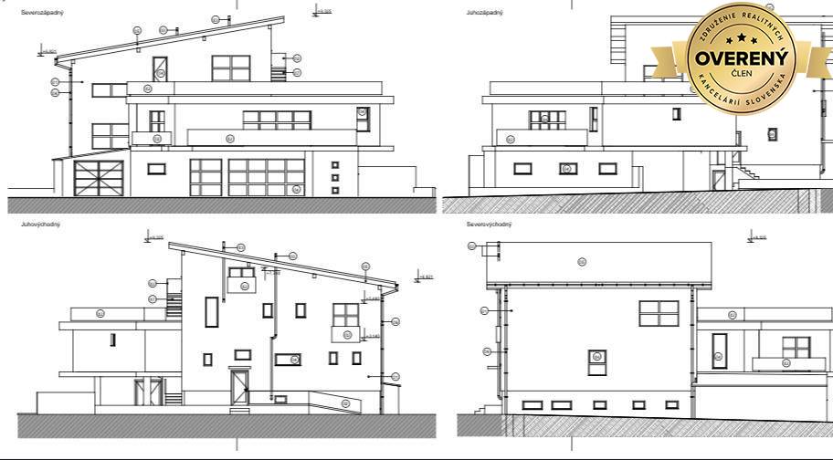
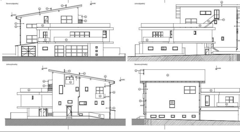
| Lot size | 1133 m² |
|---|---|
| Built-up area | 346 m² |
| Useful area | 600 m² |
| Floor | basement |
| Total floors | 4 |
| Number of rooms | 19 |
| Condition | partly re-made |
| Status | active |
| Water | water well and public water-supply |
| Electric voltage | 230V |
| Gas connection | yes |
|---|---|
| Sewer system | yes |
| Heating | own |
| Terrace | yes |
| Build from | brick |
| Thermal insulation | yes |
| Air Condition | yes |
| Energy per. certificate | no |
| Windows | plastic |
