Sale Family house, Family house, Senec, Slovakia
53096x Listing appeared in search results / 573x Listing viewed detailed / 55x The offer was shown this month
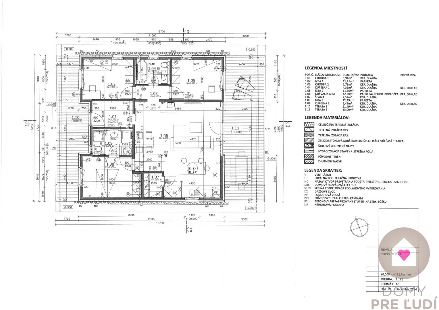
Modern 4-room family house for sale – Nový svet (new location)
We offer for sale a newly built family house in the new and rapidly developing location of Nový svet. The house is designed as a modern, single-storey building with a well-thought-out layout and an emphasis on comfortable living for the whole family.
HOUSE LAYOUT:
- number of rooms: 4
- entrance through the covered area in front of the entrance door
- vestibule with entrance to the spacious living room
- all rooms in the house accessible from the living room
- on the north side 2 separate bedrooms + shared bathroom
- on the south side master bedroom with en-suite bathroom
- kitchen with separate pantry
- from the living room entrance to the terrace (30m2) with a covered roof
Property parameters:
usable area: 98.39 m² + 30 m2 terrace
The family house is based on a monolithic reinforced concrete foundation slab. The house structure is designed as a wooden, grid structure of longitudinal grids and threshold base grids placed on concrete paving slabs. The vertical structures consist of a system of wooden column construction with exterior separate columns to support the roof structure. The house is sheathed with OSB boards + insulation + silicone plaster. The house is covered with a hipped roof with a trapezoidal sheet metal covering + part of the roof is covered with a transparent roof covering (polycarbonate). The windows are plastic with insulating triple glazing. The heating is underfloor, the heating source is a heat pump. The house has preparation for air conditioning and preparation for exterior blinds.
PLOT:
The family house is located on a plot of land with an area of 467m2, the plot is flat, IS: public water supply, electricity, septic tank. The sewerage is in the preparation stage, the plot has been prepared for future connection to the sewerage system. Currently, the house will be approved with a septic tank.
Important information:
The house is currently under construction, close to completion. If interested, the same family house can be ordered on another plot within the area (in the case of a larger plot, an additional aliquot amount will be paid)
Price: House in the holodom stage = 235,000€
House in the standard stage = 255,000€
LOCATION:
Nový svet is a new residential zone with modern construction and planned infrastructure. The location offers good transport accessibility and quick connection to main roads. There are basic civic amenities in the vicinity and the possibility of further development of services for residents. If you are looking for comfortable and modern housing in a newly built location with good prospects, this house is an ideal choice.
Your rating of the listing
Listing summary
| Lot size | 467 m² |
|---|---|
| Built-up area | 152.88 m² |
| Useful area | 98.39 m² |
| Total floors | 1 |
| Number of rooms | 4 |
| Ownership | corporate |
| Condition | no equipment |
| Status | active |
| Waste disposal | yes |
| Water | public water-supply |
| Electric voltage | 230/400V |
| Gas connection | no |
| Sewer system | sump |
| Internet | optics |
| Bathroom | yes |
|---|---|
| Heating | own - electric |
| Terrace | yes - 1 |
| Parking | private |
| System connection | yes |
| Build from | wooden construction |
| Thermal insulation | yes |
| Air Condition | yes |
| Energy per. certificate | yes |
| Accessibility | yes |
| Windows | plastic |
| Terrain | plain |
| Access road | asphalt road |
| New building | yes |
Contact form
You could be also interested in
Sale Family house
150 m2
Senec
Price N/A
Sale Family house
4221 m2
Senec
Price N/A
Sale Family house
402 m2
Senec
1.690.000,- €
Sale Family house
117 m2
Senec
339.000,- €
Sale Family house
115 m2
Senec
280.000,- €
Sale Family house
306 m2
Senec
449.900,- €
Sale Family house
161 m2
Senec
499.900,- €
Sale Family house
140 m2
Senec
284.500,- €
Sale Family house
115 m2
Senec
279.900,- €
Sale Family house
139 m2
Senec
320.000,- €
Sale Family house
129 m2
Senec
315.000,- €
Sale Family house
112 m2
Senec
259.990,- €
Sale Family house
340 m2
Senec
359.990,- €
Sale Family house
117 m2
Senec
340.000,- €
Sale Family house
130.3 m2
Senec
439.000,- €
Sale Family house
140 m2
Senec
359.900,- €
Sale Family house
115.3 m2
Senec
349.000,- €
Sale Family house
122.43 m2
Senec
134.990,- €





























