Sale Family house, Family house, Roľnícka, Bratislava - Vajnory, Slova
9413x Listing appeared in search results / 143x Listing viewed detailed / 143x The offer was shown this month
The total usable area of the house is 133.52 m2 including 20.76 m2 of terrace.
The total area of the land is 579 m2, of which 147 m2 is the access road to the house.
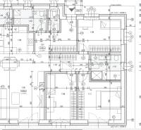
The floor plan with the legend of the rooms and the situation of the house on the land can be found in the photo gallery.
The house is sold completed to the "HOLODOM" stage. The family house is painted white, with installed sockets and switches, with a finished facade, the price also includes an Alezio heat pump, preparation for a fireplace - chimney, house fencing, sidewalks, paved areas for parking cars, gutter paths, drainage, concrete terrace, concealed boxes (preparation for exterior blinds), preparation for an alarm, preparation for a camera system and 4 x preparation for installing air conditioning. Possibility to complete the house to the "standard" stage.
Your rating of the listing
Listing summary
| Lot size | 579 m² |
|---|---|
| Built-up area | 145 m² |
| Total area | 579 m² |
| Useful area | 133.52 m² |
| Floor | basement |
| Total floors | 1 |
| Number of rooms | 4 |
| Ownership | personal property |
| Condition | no equipment |
| Status | active |
| Waste disposal | yes |
| Water | public water-supply |
| Electric voltage | 230/400V |
| Gas connection | no |
| Sewer system | yes |
| Bathroom | bath and shower |
|---|---|
| Heating | yes |
| Terrace | yes |
| Parking | yes |
| System connection | yes |
| Build from | brick |
| Furnishing | unfurnished |
| Thermal insulation | yes |
| Fireplace | Pretreatment |
| Air Condition | yes |
| Energy per. certificate | A |
| Accessibility | yes |
| Windows | plastic |
| Terrain | plain |
| New building | yes |
Contact form
Price development
You could be also interested in
Sale Family house
77 m2
Bratislava - Vajnory
379.000,- €
Sale Family house
193.78 m2
Bratislava - Vajnory
699.800,- €
Sale Family house
300 m2
Bratislava - Vajnory
359.000,- €
Sale Family house
100 m2
Bratislava - Vajnory
335.000,- €
Sale Family house
42 m2
Bratislava - Vajnory
190.000,- €
Sale Family house
93 m2
Bratislava - Vajnory
320.000,- €
Sale Family house
114 m2
Bratislava - Vajnory
298.000,- €
