Rent Two bedroom apartment, Two bedroom apartment, Bottova, Bratislava
24554x Listing appeared in search results / 290x Listing viewed detailed / 290x The offer was shown this month
We offer for rent a stylish and modernly furnished apartment in the iconic Sky Park residential project.
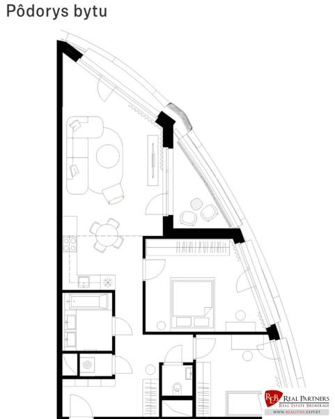
This elegant 3-room apartment with a total area of 79.41 m² is located on the 4th floor and provides comfortable living in the very center of Bratislava. The apartment includes a loggia of 5.42 m², ideal for relaxation. It is a bright apartment with views of the modern city center, combining design, comfort, and a prime location.
Address: Bottova 5, Bratislava – Sky Park Tower 4
Floor / Orientation: 4th floor, northeast
Layout: 3-room apartment (2 bedrooms), loggia
⸻
Layout and Equipment
• two separate bedrooms
• spacious living room connected to the kitchen
• fully equipped kitchen with appliances
• air conditioning, high-speed Wi-Fi, smart TV included in the rent
• stylish interior, fully furnished and ready for immediate move-in
⸻
Location and Benefits
• Old Town & Michael’s Gate: approx. 1.4 km
• Bratislava Castle: approx. 2.5 km
• Eurovea Shopping Centre & Danube promenade: approx. 1 km
• Nivy Shopping Centre & bus station: approx. 1.2 km
• large park, children’s playgrounds, restaurants, and cafés directly within the Sky Park complex
⸻
Rental Terms
? Rent:€1,600 / month
? Utilities:€400 / month
? Parking space:€150 / month
? Deposit: equivalent to 2 months’ rent
? Pets: not allowed
For more information and viewings, please contact us at or by email at
© All information stated in this advertisement is for informational purposes only and may be subject to change.
© The text and photographs are the copyrighted work and property of the real estate agency REB – REAL PARTNERS.
Your rating of the listing
Contact
REB - REAL PARTNERS, s. r. o. branch Luxusné reality, Bratislava
Červeňova 28, Bratislava 81103
Listing summary
| Useful area | 79.41 m² |
|---|---|
| Floor | 4/upper floor |
| Total floors | 31 |
| Number of rooms | 3 |
| Ownership | personal property |
| Status | active |
| Waste disposal | yes |
| Gas connection | no |
| Internet | wifi |
| Bathroom | yes |
| Heating | yes |
| Balcony | no |
| Loggia | yes |
| Terrace | no |
| Garage | yes |
|---|---|
| Elevator | yes |
| Parking | yes |
| Build from | Combined |
| Furnishing | furnished |
| Thermal insulation | yes |
| Fireplace | no |
| Air Condition | yes |
| Cable TV | yes |
| Energy per. certificate | yes |
| Patio | no |
| Windows | aluminium |
| New building | yes |
Contact form
You could be also interested in
Rent Two bedroom apartment
87 m2
Bratislava - Staré Mesto
1.350,- €/Month
Rent Two bedroom apartment
68 m2
Bratislava - Staré Mesto
660,- €/Month
Rent Two bedroom apartment
85 m2
Bratislava - Staré Mesto
1.000,- €/Month
Rent Two bedroom apartment
100 m2
Bratislava - Staré Mesto
1.300,- €
Rent Two bedroom apartment
100 m2
Bratislava - Staré Mesto
1.600,- €/Month
Rent Two bedroom apartment
120 m2
Bratislava - Staré Mesto
1.750,- €/Month
Rent Two bedroom apartment
116 m2
Bratislava - Staré Mesto
1.490,- €/Month
Rent Two bedroom apartment
72 m2
Bratislava - Staré Mesto
2.190,- €/Month
Rent Two bedroom apartment
73.18 m2
Bratislava - Staré Mesto
1.150,- €
Rent Two bedroom apartment
77 m2
Bratislava - Staré Mesto
1.250,- €/Month
Rent Two bedroom apartment
74.25 m2
Bratislava - Staré Mesto
930,- €/Month
Rent Two bedroom apartment
162.12 m2
Bratislava - Staré Mesto
2.430,- €/Month
Rent Two bedroom apartment
107 m2
Bratislava - Staré Mesto
2.600,- €/Month
Rent Two bedroom apartment
100 m2
Bratislava - Staré Mesto
1.200,- €/Month
Rent Two bedroom apartment
70 m2
Bratislava - Staré Mesto
1.000,- €/Month
Rent Two bedroom apartment
119 m2
Bratislava - Staré Mesto
2.200,- €/Month
Rent Two bedroom apartment
116 m2
Bratislava - Staré Mesto
2.200,- €/Month
Rent Two bedroom apartment
116 m2
Bratislava - Staré Mesto
2.200,- €
