Rent Offices, Offices, Šamorínska, Senec, Slovakia
18063x Listing appeared in search results / 469x Listing viewed detailed / 66x The offer was shown this month
For rent – representative office space with private parking, in a quiet location on Šamorínska Street, Senec
✅Area of office number 2: 35 m²
✅Rental price:€315.00 per month
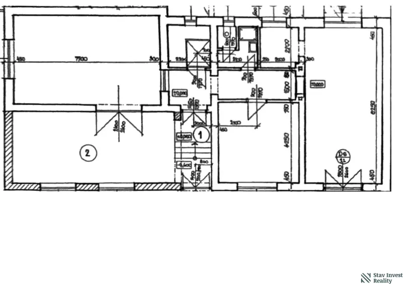
✅The total area of the offices is 196 m², and the space can also be rented separately for individual offices, with a total of 4 offices plus a kitchenette
We offer for rent modern and representative administrative premises located on Šamorínska Street in Senec.
✅The premises are air-conditioned and have their own parking directly in the courtyard of the building.
✅Layout:
- spacious entrance hall with the possibility of setting up a reception area,
- four fully furnished offices,
- equipped kitchenette,
- bathroom facilities,
- technical room.
The total area of the administrative space is 196 m², and the space can also be rented separately for individual offices in 4 offices
The premises can be adapted as needed - for example, divided by glass partitions to create up to 10 separate offices for approximately 20 employees.
✅Equipment:
- air conditioning,
- alarm,
- internet connection,
- central printer/copier,
- office furniture,
- private parking (5 spaces in the courtyard with remote control, additional spaces opposite the building).
✅Transport:
Excellent accessibility – direct connection to road No. 62 and the D1 motorway.
✅Rental price:
315EUR per m² / month + utilities for individual offices 50EUR / month
parking space included in the rental price
✅CONTACT:
Mgr. Jana Čepelová
Tel.:
E-mail:
Web: www.stavinvestreality.sk
Your rating of the listing
Listing summary
| Total area | 35 m² |
|---|---|
| Useful area | 35 m² |
| Floor | basement |
| Number of rooms | 1 |
| Condition | fully re-made |
| Status | active |
| Elevator | no |
| Parking | private |
|---|---|
| Build from | brick |
| Furnishing | furnished |
| Thermal insulation | yes |
| Air Condition | yes |
| Energy per. certificate | no |
| Windows | plastic |
Contact form
Price development
You could be also interested in
Rent Offices
192 m2
Senec
9,- €/m2/Month
Rent Offices
50 m2
Senec
330,- €/Month
Rent Offices
18 m2
Senec
280,- €
Rent Offices
350 m2
Senec
6,- €/m2/Month
Rent Offices
18 m2
Senec
162,- €/m2/Month
Rent Offices
20 m2
Senec
230,- €
Rent Offices
30.75 m2
Senec
270,- €/Month
Rent Offices
330 m2
Senec
6,- €/m2/Month
Rent Offices
19 m2
Senec
171,- €/Month
