Multi-generational family home with renovated bathrooms
6173x Listing appeared in search results / 218x Listing viewed detailed / 162x The offer was shown this month
RIVERS REAL ESTATE agency is pleased to offer for sale a three-storey, fully renovated family home located in Ivanka pri Dunaji.
This property sits in one of the best-equipped suburban communities near Bratislava, offering excellent accessibility to the city centre — you can reach Bratislava in just 20 minutes via the D4 and R7 highways — while providing a quiet, safe environment ideal for family living.
________________________________________
Agent’s Highlights
✅ A solidly built family home with outstanding potential — spacious living, multi-generational setup, home business, or relaxation zone possibilities
✅ Traditional tiled stoves, the focal points of both living rooms, create instant charm and character
✅ Timeless renovation completed in 2024–2025
✅ Move-in ready — no further investment required
✅ 6 rooms + 3 rooms in basement, 3 bathrooms with WC, 2 fully equipped kitchens + one pre-installed for a third, 3 pantries, and storage space, garden house
✅ The basement floor can be used for living, relaxing, or doing business.
✅ Sunny terrace perfect for outdoor relaxation
✅ Parking for 2 cars under a carport + additional street parking
✅ Mature garden with ornamental and fruit trees, automatic irrigation system supplied by a private well
✅ Fully fenced property
✅ Space for swimming pool, children’s playground, or vegetable garden
✅ Comfort, quality, and tranquility — all in one
________________________________________
Technical Details
• Land area: 591 m²
• Built-up area: 148 m²
• Total usable area: 442.98 m²
• South-facing house and garden
• Final approval: 1999 | Renovation: 2024–2025
• Construction: Brick
• Roof: High-quality Alpine roof tiles
• Windows: PVC with insect screens and new interior blinds (2025)
• Heating: Gas boiler (replaced 5 years ago), radiators, Energy Certificate in preparation
• Renovation highlights (2024–2025):
– New timeless bathrooms with Hansgrohe, Duravit, and Laufen fittings
– New ceiling air-conditioning units in the living room and upper-floor bedrooms
– Refurbished kitchen with new appliances
– New interior blinds and outdoor tiling on the terrace, balcony, and entrance area
• Utilities: Water, gas, electricity, optical internet, public sewerage + private well
• Floors: Laminate, ceramic tiles in kitchen, bathrooms, and hallway
• Interior doors & frames: Solid wood
________________________________________
Layout
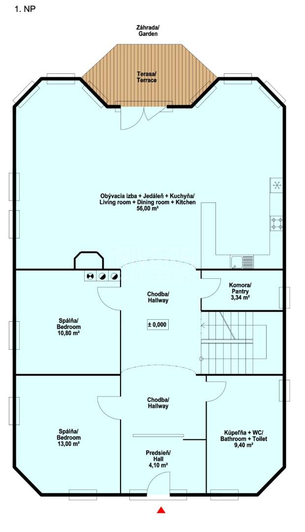
The house consists of three levels, all sharing the same floor plan.
The ground floor offers the main living area — an open-plan living room with dining area and access to the terrace, two bedrooms, a modern bathroom, and a pantry.
The centerpiece of this floor — and the entire house — is the spacious living room with garden views, seamlessly connected to the terrace through French doors.
The first floor mirrors the same layout: an open-plan living room with kitchen (currently used as a master bedroom), two additional bedrooms, a walk-in wardrobe, a separate WC, and a designer bathroom.
The basement level follows the same footprint and is currently used as a relaxation zone — gym, playroom, library — along with a laundry area and storage rooms.
________________________________________
Location
Ivanka pri Dunaji is one of the most prestigious and sought-after areas near Bratislava.
Excellent transport connections via D1 motorway, R7 expressway, and regular train and bus links ensure an easy daily commute to the city while maintaining a peaceful suburban atmosphere.
The community offers full amenities — modern schools and kindergartens, healthcare facilities, shops, quality restaurants, sports centers, and all essential services for everyday living.
Known for its green surroundings, friendly atmosphere, and strong community, Ivanka pri Dunaji provides many opportunities for outdoor activities — walks around the Štrkovisko lake, cycling along the Little Danube, or relaxing in quiet natural spots.
________________________________________
#followtheriversfindyourhome
Your rating of the listing
Listing summary
| Lot size | 591 m² |
|---|---|
| Built-up area | 148 m² |
| Useful area | 442.98 m² |
| Total floors | 3 |
| Number of rooms | 9 |
| Ownership | personal property |
| Condition | reconstructed |
| Status | active |
| Waste disposal | separable |
| Water | public water-supply |
| Electric voltage | 230/400V |
| Gas connection | yes |
| Sewer system | yes |
| Internet | optics |
| Bathroom | yes |
| Heating | own - natural gas |
| Balcony | yes |
| Terrace | yes |
|---|---|
| Utility room | yes |
| Garage | no |
| Parking | yes |
| System connection | yes |
| Build from | brick |
| Furnishing | furnished |
| Thermal insulation | no |
| Roof | original condition |
| Fireplace | yes |
| Air Condition | yes |
| Cable TV | yes |
| Energy per. certificate | no |
| Windows | plastic |
| Terrain | plain |
| Access road | asphalt road |
Contact form
You could be also interested in
Sale Family house
174 m2
Senec
290.000,- €
Sale Family house
140 m2
Senec
359.900,- €
Sale Family house
137.41 m2
Senec
139.990,- €
Sale Family house
184 m2
Senec
550.000,- €
Sale Family house
200 m2
Senec
420.000,- €
Sale Family house
120 m2
Senec
258.000,- €
Sale Family house
118.73 m2
Senec
134.990,- €
Sale Family house
100 m2
Senec
329.900,- €
Sale Family house
80 m2
Senec
233.000,- €
Sale Family house
125 m2
Senec
420.000,- €
Sale Family house
92 m2
Senec
275.000,- €
Sale Family house
125 m2
Senec
424.000,- €
Sale Family house
101.4 m2
Senec
329.000,- €
Sale Family house
115.3 m2
Senec
365.000,- €
Sale Family house
118.73 m2
Senec
154.990,- €
Sale Family house
165 m2
Senec
Price N/A
Sale Family house
537 m2
Senec
750.000,- €
Sale Family house
200 m2
Senec
580.000,- €
































