Exclusive apartment below Slavín with a terrace and view of Bratislava
48343x Listing appeared in search results / 250x Listing viewed detailed / 170x The offer was shown this month
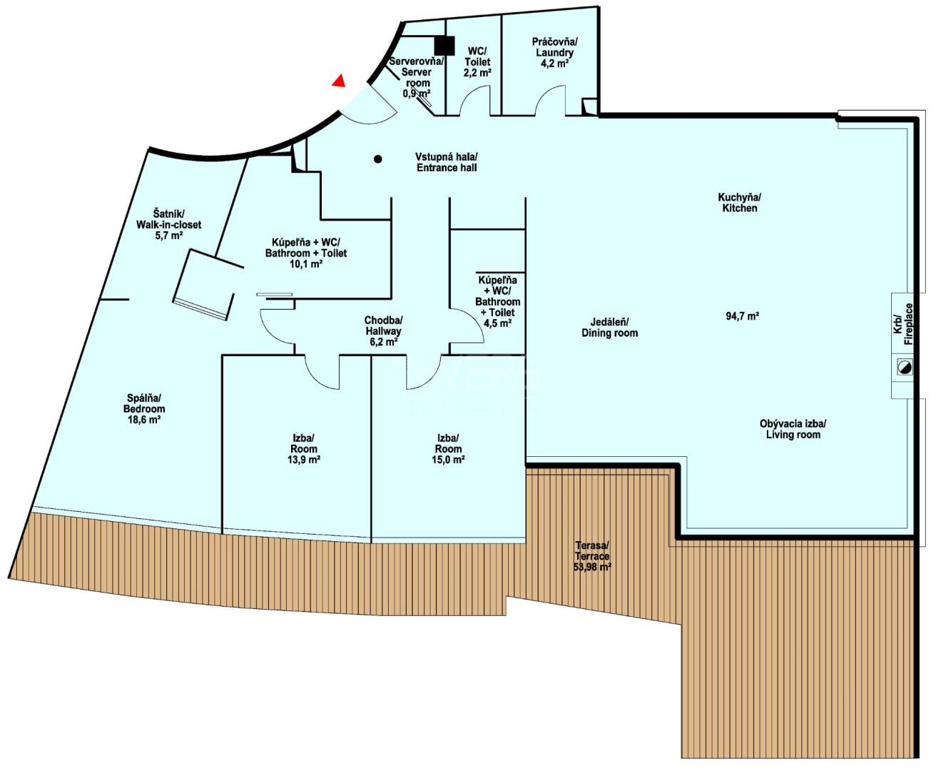
RIVERS REAL ESTATE agency is pleased to present for sale a luxurious, light-filled four-bedroom apartment beneath Slavín Hill, offering 244 sqm of living space and a panoramic terrace with breathtaking views over Bratislava.
Agent’s note – why this property stands out:
✅ Highly recommended for discerning clients seeking space without compromise
✅ Bright, airy living with generous outdoor space and unique city landmark views
✅ Prestigious location
✅ Three comfortable side-by-side parking spaces
✅ A rare opportunity combining quality, location, and a representative living space—ideal for a prestigious residence or investment
________________________________________
THE APARTMENT
• Four-bedroom layout – living room with open-plan kitchen and dining area opening directly onto the terrace, three bedrooms, two bathrooms with WC, separate WC, laundry room, walk-in wardrobe, and ample storage
• Total area: 244.01 m² (apartment incl. ancillary areas 190.03 sqm + terrace 53.98 sqm accessible from all rooms)
• East-facing orientation with excellent natural light, enhanced by skylights
• Master suite with walk-in wardrobe and en-suite bathroom (double vanity, bathtub, shower, WC, bidet)
• Full-length terrace along all rooms – panoramic city views
• Three comfortable parking spaces next to each other for a total price ofEUR 150,000
• Large aluminium sliding windows with electric exterior blinds
• Independent apartment heating (separate control, expansion tank, large hot water storage)
• Fireplace
• Air conditioning in every room
• Spacious, airy interior with ceiling heights up to 3.3 m, abundant light, and a representative floor plan
________________________________________
THE BUILDING
Brick construction, completed in 2006
Developed by a renowned company with high-quality execution
Secure gated entrance
Unique, well-maintained, and representative common areas
________________________________________
LOCATION
Old Town – Palisády / Diplomatic Quarter (beneath Slavín Hill)
Prestigious and quiet residential area with panoramic views of city landmarks and villa architecture
Quick access to the city centre, excellent public transport connections, and easy exit routes out of the city
Close to Horsky Park, amenities, and shopping
________________________________________
#followtheriversfindyourhome
Your rating of the listing
Listing summary
| Total area | 244.01 m² |
|---|---|
| Useful area | 190.03 m² |
| Floor | 5/last floor |
| Total floors | 5 |
| Number of rooms | 4 |
| Ownership | personal property |
| Condition | original condition |
| Status | active |
| Waste disposal | separable |
| Gas connection | yes |
| Internet | optics |
| Bathroom | yes |
| Heating | own - natural gas |
| Terrace | yes |
| Utility room | yes |
|---|---|
| Garage | 3 cars |
| Elevator | yes |
| Parking | yes |
| Build from | brick |
| Furnishing | unfurnished |
| Thermal insulation | yes |
| Fireplace | yes |
| Air Condition | yes |
| Cable TV | yes |
| Energy per. certificate | B |
| Windows | aluminium |
| Orientation | east |
| New building | yes |
Contact form
You could be also interested in
Sale Three bedroom apartment
114 m2
Bratislava - Staré Mesto
380.000,- €
Sale Three bedroom apartment
110.3 m2
Bratislava - Staré Mesto
358.700,- €
Sale Three bedroom apartment
106.8 m2
Bratislava - Staré Mesto
405.000,- €
Sale Three bedroom apartment
138.6 m2
Bratislava - Staré Mesto
Price N/A
Sale Three bedroom apartment
125 m2
Bratislava - Staré Mesto
449.000,- €
Sale Three bedroom apartment
110 m2
Bratislava - Staré Mesto
530.000,- €
Sale Three bedroom apartment
102 m2
Bratislava - Staré Mesto
455.000,- €
Sale Three bedroom apartment
131 m2
Bratislava - Staré Mesto
650.000,- €
Sale Three bedroom apartment
135 m2
Bratislava - Staré Mesto
489.000,- €
Sale Three bedroom apartment
89.05 m2
Bratislava - Staré Mesto
379.900,- €
Sale Three bedroom apartment
130.37 m2
Bratislava - Staré Mesto
445.000,- €
Sale Three bedroom apartment
102 m2
Bratislava - Staré Mesto
Price N/A
Sale Three bedroom apartment
120 m2
Bratislava - Staré Mesto
519.000,- €
Sale Three bedroom apartment
167 m2
Bratislava - Staré Mesto
Price N/A
Sale Three bedroom apartment
192 m2
Bratislava - Staré Mesto
Price N/A
Sale Three bedroom apartment
108 m2
Bratislava - Staré Mesto
498.500,- €
Sale Three bedroom apartment
175 m2
Bratislava - Staré Mesto
899.000,- €
Sale Three bedroom apartment
123.2 m2
Bratislava - Staré Mesto
Price N/A





























