BA/OLD TOWN - Rent a fully furnished 2-room apartment with 2 balconies
14964x Listing appeared in search results / 196x Listing viewed detailed / 196x The offer was shown this month
If you are looking for an apartment with walking access to the city center, excellent connections to the whole of Bratislava, whether by tram or bus, with full civic amenities, we have a great offer for you.
We exclusively offer for long-term rent an excellently designed fully furnished 2-room apartment with a separate kitchen, balcony, French balcony and cellar in the Old Town on Krížná Street near the Trnavský mýt. The apartment is located on the 3rd floor out of 6 in a renovated brick apartment building with an elevator. It is oriented to the southeast side of the inner block, which guarantees pleasant light throughout the day. The windows are equipped with blinds and nets.
The apartment itself underwent an older complete reconstruction, when electrical installations, plumbing installations, plastic windows, optical cable were replaced, new screeds were made, interior doors, floating floors, ceramic tiles, toilet, bathroom with shower and tiles, furniture and also a complete kitchen with built-in appliances.
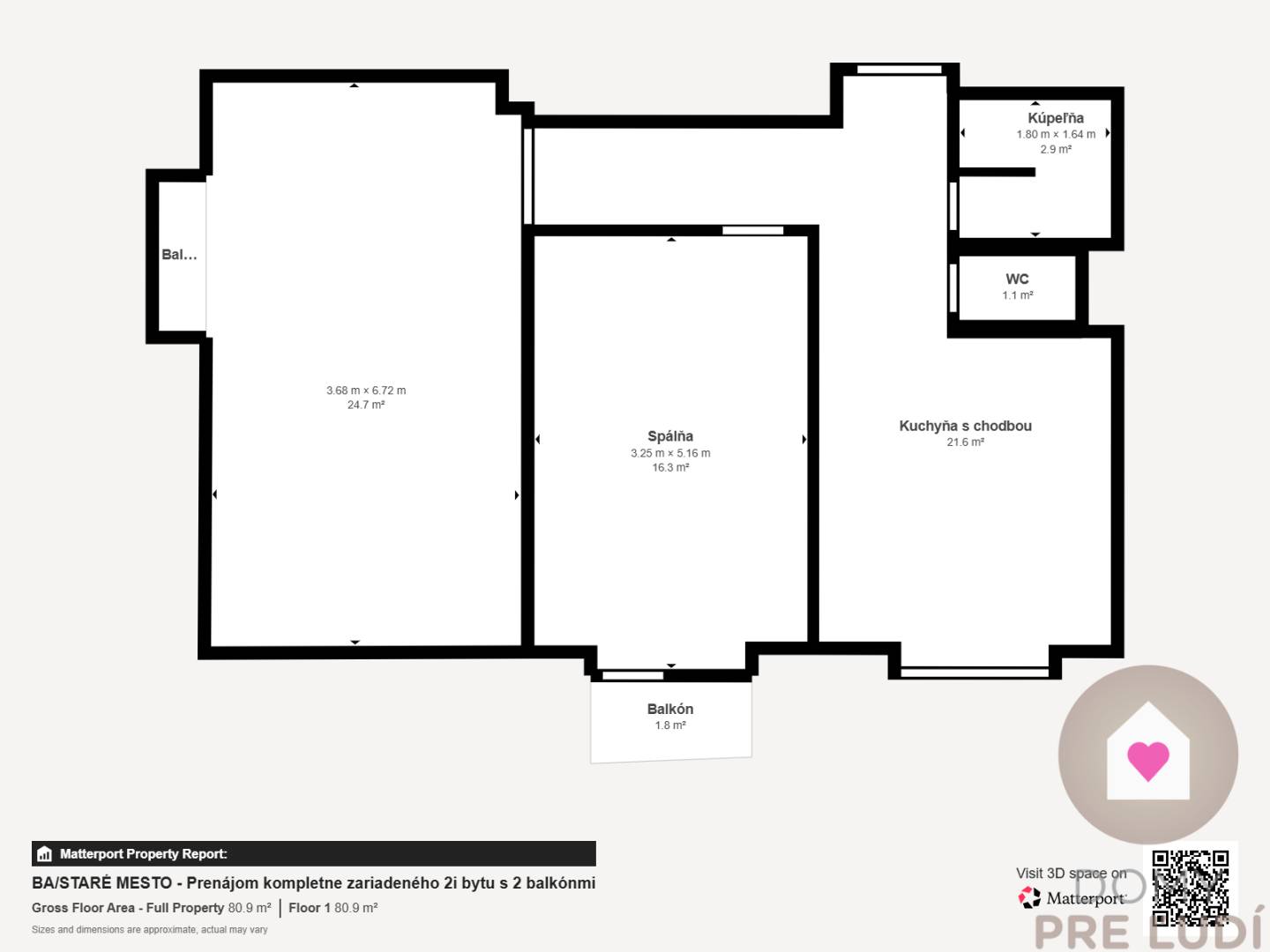
The apartment has:
- entrance hall with shoe rack, mirror and coat rack
- separate fully equipped kitchen - custom-made kitchen with built-in appliances (hob, electric oven, extractor hood), free-standing fridge with freezer, microwave and washing machine, dining table with 6 chairs and is also equipped with dishes and a complete kitchen. utensils,
- a spacious living room with a sofa, coffee table, carpet, living room cabinet set, TV, work table with chair, floor lamp and access to a French balcony (0.8 m2),
- a spacious bedroom with a double bed with mattress, 2 x bedside tables, armchair, floor lamp and 3 wardrobes. Access to a balcony oriented to a quiet inner block with lots of greenery, which increases the area of the apartment by 4.2 m2,
- a bathroom with a shower, washbasin, mirror cabinet and cabinet under the washbasin,
- separate toilet
- security door.
The apartment also includes a bar cellar with an area of 2 m2, which is located in the basement of the apartment building
The apartment is rented fully furnished and is available immediately. It is an excellent housing solution for an individual or a working couple.
The monthly rent is€850 +€250 for energy including internet. In the case of 3 people, the energy price increases by€50.
When signing the lease, a deposit in the amount of one month's rent with energy is required, which is refundable after the lease expires.
If you are interested in viewings, do not hesitate to contact me on tel. number .
The location has excellent civic amenities and infrastructure, easy access to many connections to the city and other parts of Bratislava - (Krížna ul., Trnavské and Račianske mýto). Right under the house there is Terno, a florist and many shops. In the vicinity there are groceries (Lidl, Billa, Terno..), a bakery, a restaurant at Taliana, Domino Pizza, cafes, OC Centrál, Tržnica na Trnavské mýte, the future Istropolis, a school, kindergartens, a health center, etc.
Parking is provided in the form of the Old Town parking policy.
Your rating of the listing
Listing summary
| Total area | 72 m² |
|---|---|
| Useful area | 66.2 m² |
| Floor | 3/upper floor |
| Total floors | 6 |
| Number of rooms | 2 |
| Ownership | corporate |
| Condition | fully re-made |
| Status | active |
| Waste disposal | separable |
| Gas connection | no |
| Internet | optics |
| Bathroom | yes |
| Heating | central |
| Balcony | yes - 2 |
| Loggia | no |
| Terrace | no |
|---|---|
| Utility room | yes |
| Garage | no |
| Parking | public |
| Build from | brick |
| Furnishing | furnished |
| Thermal insulation | yes |
| Fireplace | no |
| Air Condition | no |
| Cable TV | yes |
| Energy per. certificate | yes |
| Patio | no |
| Accessibility | no |
| Windows | plastic |
| Orientation | south east |
Contact form
Price development
You could be also interested in
Rent One bedroom apartment
86 m2
Bratislava - Staré Mesto
780,- €/Month
Rent One bedroom apartment
75 m2
Bratislava - Staré Mesto
800,- €/Month
Rent One bedroom apartment
105 m2
Bratislava - Staré Mesto
1.500,- €/Month
Rent One bedroom apartment
77 m2
Bratislava - Staré Mesto
900,- €
Rent One bedroom apartment
98 m2
Bratislava - Staré Mesto
1.900,- €/Month
Rent One bedroom apartment
52 m2
Bratislava - Staré Mesto
1.600,- €/Month
Rent One bedroom apartment
55 m2
Bratislava - Staré Mesto
950,- €
Rent One bedroom apartment
82 m2
Bratislava - Staré Mesto
1.100,- €/Month
Rent One bedroom apartment
75 m2
Bratislava - Staré Mesto
1.190,- €/Month
Rent One bedroom apartment
72 m2
Bratislava - Staré Mesto
900,- €/Month
Rent One bedroom apartment
50 m2
Bratislava - Staré Mesto
750,- €
Rent One bedroom apartment
43 m2
Bratislava - Staré Mesto
950,- €/Month
Rent One bedroom apartment
75 m2
Bratislava - Staré Mesto
1.000,- €/Month
Rent One bedroom apartment
27.7 m2
Bratislava - Staré Mesto
600,- €
Rent One bedroom apartment
51 m2
Bratislava - Staré Mesto
1.150,- €/Month
Rent One bedroom apartment
42 m2
Bratislava - Staré Mesto
1.000,- €/Month
Rent One bedroom apartment
61 m2
Bratislava - Staré Mesto
900,- €
Rent One bedroom apartment
52 m2
Bratislava - Staré Mesto
950,- €

























